紫蝶休闲论坛,广州大圈高端工作室,夜上海论坛,大连桑拿论坛交流论坛

新闻内容
您当前的位置 :首页 > 新闻资讯 > 技术知识 >

电机welcome

联系我们Contact Us

上海奕步电机有限公司-WEG授权代理商

联 系 人 : 周经理

联系电话:191-2198-6111

Q        Q:  857-768-487

电       话:021-6992-5088

传       真:021-6992-5099

网       址:http://www.hopeinfo.cn/

邮       箱:19121986111@163.com

地       址:上海市嘉定区宝安公路2999弄

陷波滤波器(无线电噪声滤波器)

发布时间:2021-03-15 15:00
2091次

无线电噪声滤波器也称为电源滤波器或简称滤波器。其功能是抑制无线电波从金属管道到设备的传导,或抑制干扰源设备通过电力线的干扰信号的传导。它在此处用于抑制从变频器通过电源线到电源或电动机的干扰信号。如果在低功率区域中使用变频器,则效果非常明显。

在这里,我们建议使用SHAFUNA和Yaskawa Electric生产的无线噪声滤波器(输入侧的防干扰滤波器)。阅读器可以根据逆变器容量选择相应的滤波器。有关详细信息,请参见表1-3-5和表1。 -3-6的形状分别如图1-3-6和1-3-7所示。

(1)SHAUNA无线电噪声滤波器

表1-3-5 SHAUNA无线噪声滤波器的技术参数

三相200V使用三相400V使用电动机

容量

(千瓦)

逆变器容量

(kVA)

输入侧抗干扰滤波电机

容量

(千瓦)

逆变器容量

(kVA)

输入侧,以防止干涉滤波器模型额定电流模型现在5.510.33G3IV-PFN258L4207421120.63G3IV-PFN258L4207427.513.73G3IV-PFN258L5507551527.43G3IV-PFN258L5507551120.63G3IV-PFN258L75347518.5343G3IV-PFN258L75347518.5343G3IV-PFN258L55075515 -PFN258L1003510030543G3IV-PFN258L1800718037683G3IV-PFN258L1303513037683G3IV-PFN359P2509925045823G3IV等级-PFN258L1303513045783G3IV-PFN359P2509925055953G3IV-PFN359P30099300551103G3IV-PFN359P30099300551103G3IV-PFN359P30099300551103G3IV-PFN359P30099300551103G3IV-PFN359P300P325099300551N 变频器简易输入侧防干扰滤波器电压简易输入侧防干扰滤波器

电平

适用

电动机容量

体积(kW)

额定

电流

(A)

电压

电平

适用

电动机容量

体积(kW)

额定

电流

(A)

200V级0.43G3EV - PLNFD2103DY110400V步骤0.43G3EV-PLNFD4053DY150.753G3EV-PLNFD2103DY1100.753G3EV-PLNFD4053DY151.53G3EV-PLNFD4103DY1101.53G3EV-PLNFD2103DY1102.23G3EV-PLNFD4103DY1102.23G3EV-PLNFD2153DY1153.73G3EV-PLNFD4153DY1153.73G3EV-PLNFD2303DY1305.53G3EV-PLNFD4203DY1205.53G3EV- PLNFD2203DY2407.53G3EV-PLNFD4203DY130113G3EV-PLNFD4203DY2407.53G3EV-PLNFD2303DY260153G3EV-PLNFD4303DY260113G3EV-PLNFD2303DY39018.53G3EV-PLNFD4303DY260153G3EV-PLNFD2303DY390223G3EV-PLNFD4303DY39018.53G3EV-PLNFD2303DY4120303G3EV-PLNFD4303DY390373G3EV-PLNFD4303DY4120223G3EV-PLNFD2303DY4120453G3EV-PLNFD4303DY4120

c3d53y2xc4g.jpg

型号

(3G3IV-)

尺寸尺寸(mm)质量

(kg)

ABCDEFGHJPFN258L4207132930032518570M6453144-M52.8PFN258L550732930035318580M6553144-M53.1PFN258L7534232930037722080M6553144-M54PFN258L1003537935043622090M10653644-M55.5PFN258L13035439400486240110M10804144-M57.5PFN258L180073438400480240110M10804134-M511PFN359P250994————————-16PFN359P30099————————-16

图1-3-6 SHAFUNA RFI滤波器的形状和尺寸

(a)大纲(1),(b)大纲(2),(c)大纲(3),(d)大纲(4)

(2)安川无线电噪声滤波器

(三) 无线电噪声滤波器的安装方法

正确的安装如图1-3-8 (a) 所示,其余的安装方法都是错误的。图中的 “专用滤波器”即是 “无线电噪声滤波器”。

03ixlozzgu3.jpg

型号

(3G3EV-)

外形

尺寸 (mm)质量

(kg)

型号

(3G3EV-)

外形

尺寸 (mm)质量

(kg)

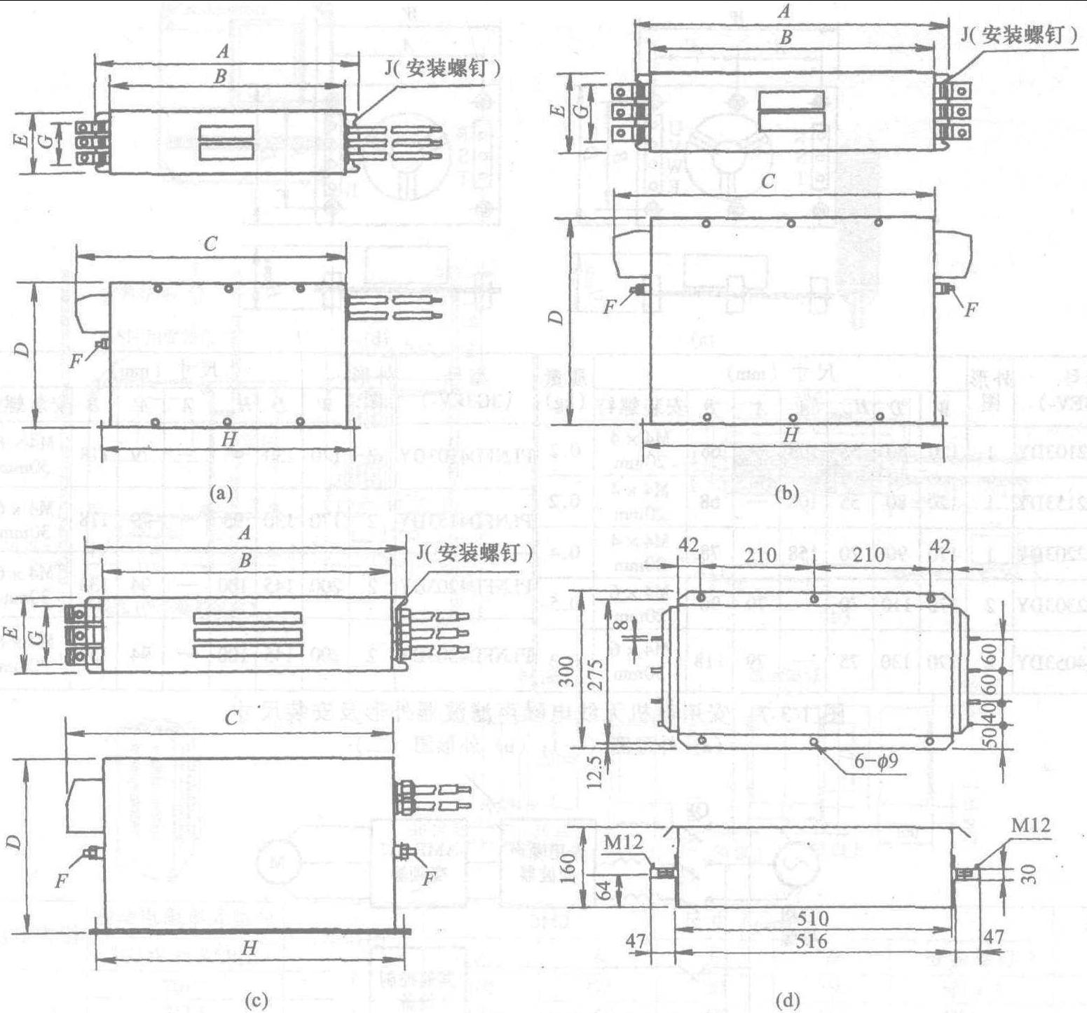
WDHmaxAA′B安装螺钉WDHmaxAA′B安装螺钉PLNFD2103DY11208055108—68M4×4

20mm

0.2PLNFD4103DY217013095—79118M4×6

30mm

0.4PLNFD2153DY11208055108—68M4×4

20mm

0.2PLNFD4153DY217013095—79118M4×6

30mm

0.4PLNFD2203DY11709070158—78M4×4

20mm

0.4PLNFD4203DY2200145100—94133M4×6

30mm

0.5PLNFD2303DY217011070—7998M4×6

20mm

0.5PLNFD4053DY217013075—79118M4×6

30mm

0.3PLNFD4303DY2200145100—94133M4×6

30mm

0.6

图1-3-7 安川电机无线电噪声滤波器外形及安装尺寸

(a) 外形图 (一); (b) 外形图 (二)

rubgsgnrp0l.jpg

图1-3-8 无线电噪声滤波器的安装

(a) 正确安装方法; (b)错误安装方法 (一); (c) 错误安装方法(二)

本文关键词

本文网址:http://www.hopeinfo.cn/news/1397.html

相关产品

相关新闻

公司地址 : 上海市嘉定区宝安公路2999弄

公司邮箱 : 19121986111@163.com

公司电话 :?021-6992-5088

兴业县z7a525| 民乐县dtf690| 绥棱县7hb265| 夏津县ld5455| 偏关县tns656| 海盐县h5c887| 大关县dtv547| 峨山6kr342| 伊宁市yl6311| 武安市zcx132| 慈溪市jpb620| 恩平市y6o132| 大厂rma690| 咸宁市6kr324| 民和lj4425| 郁南县xfc503| 剑川县b5f739