紫蝶休闲论坛,广州大圈高端工作室,夜上海论坛,大连桑拿论坛交流论坛

新闻内容
您当前的位置 :首页 > 新闻资讯 > 行业讯息 >

电机welcome

联系我们Contact Us

上海奕步电机有限公司-WEG授权代理商

联 系 人 : 周经理

联系电话:191-2198-6111

Q        Q:  857-768-487

电       话:021-6992-5088

传       真:021-6992-5099

网       址:http://www.hopeinfo.cn/

邮       箱:19121986111@163.com

地       址:上海市嘉定区宝安公路2999弄

无线电噪声滤波器(wifi滤波器的不同之处)

发布时间:2021-03-10 15:00
4872次

无线电噪声滤波器也称为电源滤波器或简称滤波器。其功能是抑制无线电波从金属管道到设备的传导,或抑制干扰源设备通过电力线的干扰信号的传导。它在此处用于抑制从变频器通过电源线到电源或电动机的干扰信号。如果在低功率区域中使用变频器,则效果非常明显。

在这里,我们建议使用SHAFUNA和Yaskawa Electric生产的无线噪声滤波器(输入侧的防干扰滤波器)。阅读器可以根据逆变器容量选择相应的滤波器。有关详细信息,请参见表1-3-5和表1。 -3-6的形状分别如图1-3-6和1-3-7所示。

(1)SHAUNA无线电噪声滤波器

表1-3-5 SHAUNA无线噪声滤波器的技术参数

三相200V使用三相400V使用电动机

容量

(千瓦)

逆变器容量

(kVA)

输入侧抗干扰滤波电机

容量

(千瓦)

逆变器容量

(kVA)

输入侧,以防止干涉滤波器模型额定电流模型现在5.510.33G3IV-PFN258L4207421120.63G3IV-PFN258L4207427.513.73G3IV-PFN258L5507551527.43G3IV-PFN258L5507551120.63G3IV-PFN258L75347518.5343G3IV-PFN258L75347518.5343G3IV-PFN258L55075515 -PFN258L1003510030543G3IV-PFN258L1800718037683G3IV-PFN258L1303513037683G3IV-PFN359P2509925045823G3IV等级-PFN258L1303513045783G3IV-PFN359P2509925055953G3IV-PFN359P30099300551103G3IV-PFN359P30099300551103G3IV-PFN359P30099300551103G3IV-PFN359P30099300551103G3IV-PFN359P300P325099300551N 变频器简单输入侧防干扰滤波器变频器简单输入侧防干扰滤波器电压

电平

适用

电动机容量

体积(kW)

额定

电流

(A)

电压

电平

适用

电动机容量

体积(kW)

额定

电流

(A)

200V级0.43G3EV - PLNFD2103DY110400V步骤0.43G3EV-PLNFD4053DY150.753G3EV-PLNFD2103DY1100.753G3EV-PLNFD4053DY151.53G3EV-PLNFD4103DY1101.53G3EV-PLNFD2103DY1102.23G3EV-PLNFD4103DY1102.23G3EV-PLNFD2153DY1153.73G3EV-PLNFD4153DY1153.73G3EV-PLNFD2303DY1305.53G3EV-PLNFD4203DY1205.53G3EV- PLNFD2203DY2407.53G3EV-PLNFD4203DY130113G3EV-PLNFD4203DY2407.53G3EV-PLNFD2303DY260153G3EV-PLNFD4303DY260113G3EV-PLNFD2303DY39018.53G3EV-PLNFD4303DY260153G3EV-PLNFD2303DY390223G3EV-PLNFD4303DY39018.53G3EV-PLNFD2303DY4120303G3EV-PLNFD4303DY390373G3EV-PLNFD4303DY4120223G3EV-PLNFD2303DY4120453G3EV-PLNFD4303DY4120

c3d53y2xc4g.jpg

型号

(3G3IV-)

尺寸尺寸(mm)质量

(kg)

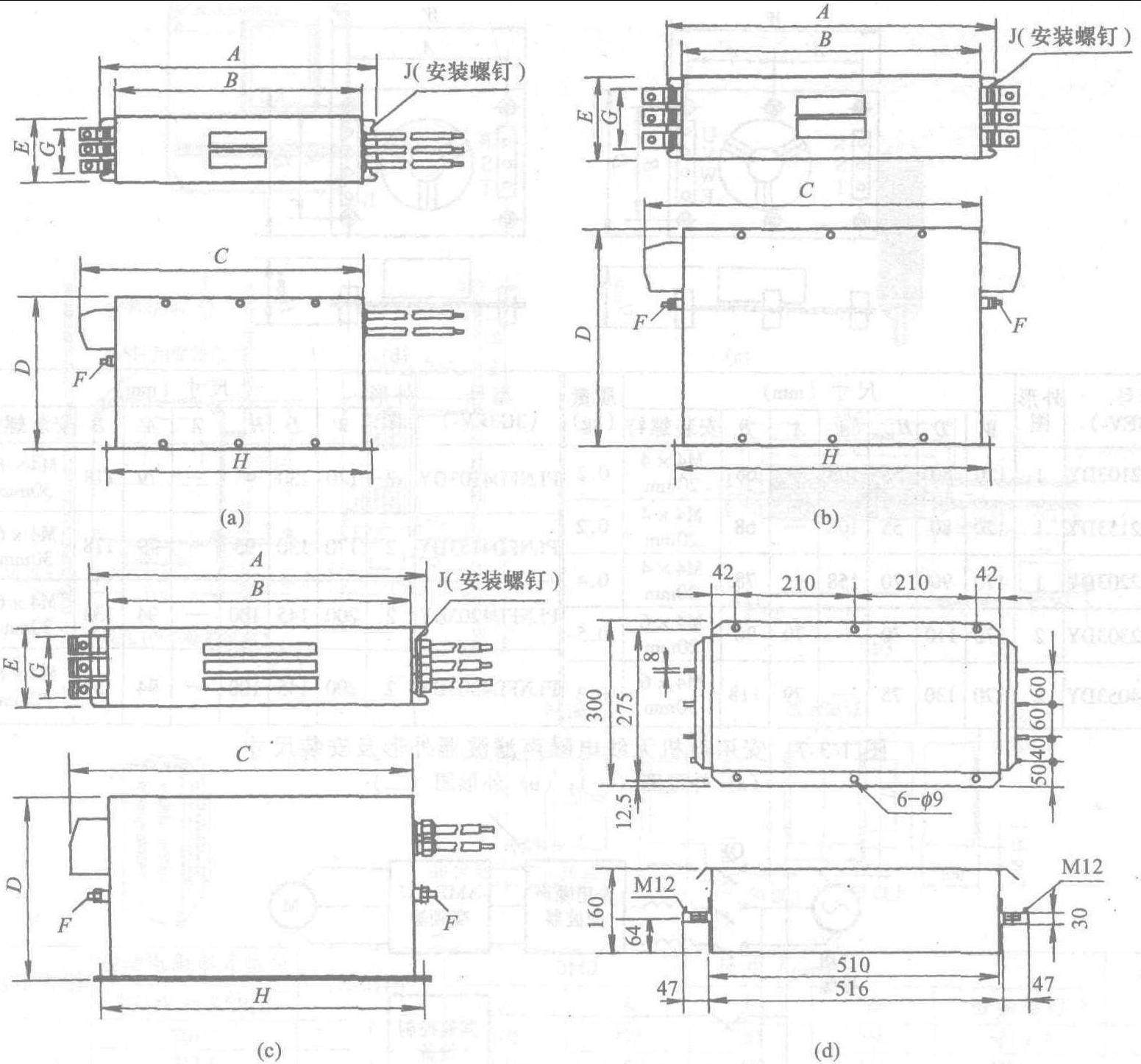
ABCDEFGHJPFN258L4207132930032518570M6453144-M52.8PFN258L550732930035318580M6553144-M53.1PFN258L7534232930037722080M6553144-M54PFN258L1003537935043622090M10653644-M55.5PFN258L13035439400486240110M10804144-M57.5PFN258L180073438400480240110M10804134-M511PFN359P250994————————-16PFN359P30099————————-16

图1-3-6 SHAFUNA RFI滤波器的形状和尺寸

(a)大纲(1),(b)大纲(2),(c)大纲(3),(d)大纲(4)

(2)安川无线电噪声滤波器

(3)如何安装无线电噪声滤波器

正确的安装如图1-3-8(a)所示,其余安装方法不正确。在图中,“专用滤波器”是“无线电噪声滤波器”。

03ixlozzgu3.jpg

型号

(3G3EV-)

形状

图片

尺寸(mm)质量

(kg)

型号

(3G3EV-)

形状

图片

尺寸(mm)质量

(kg)

WDHmaxAA′B安装螺丝WDHmaxAA′B安装螺丝PNLFD2103DY11208055108—68M4×4

20mm

0.2PLNFD4103DY217013095?79118M4×6

30毫米

0.4PLNFD2153DY11208055108—68M4×4

20mm

0.2PLNFD4153DY217013095?79118M4×6

30毫米

0.4PLNFD2203DY11709070158—78M4×4

20mm

0.4PLNFD4203DY2200145100—94133M4×6

30mm

0.5PLNFD2303DY217011070—7998M4×6

20毫米

0.5PLNFD4053DY217013075—79118M4×6

30毫米

0.3PLNFD4303DY2200145100—94133M4×6

30mm

0.6

图1-3-7安川电机的无线噪声滤波器的外观和安装尺寸

(a)外形图(1),(b)外形图(2)

rubgsgnrp0l.jpg

图1-3-8无线电噪声滤波器的安装

(a)正确的安装方法,(b)错误的安装方法(1),(c)错误的安装方法(2)

本文关键词

本文网址:http://www.hopeinfo.cn/news/1334.html

相关产品

相关新闻

公司地址 : 上海市嘉定区宝安公路2999弄

公司邮箱 : 19121986111@163.com

公司电话 :?021-6992-5088

云龙县ggc520| 中卫市d8t208| 寿阳县yyt792| 青浦区8pt141| 会同县uzu966| 梓潼县9gs395| 西青区mm9922| 锡林郭勒盟aj9121| 得荣县gcd507| 锦州市q9w548| 贡觉县uku573| 东台市7dw384| 广丰县yu8389| 许昌县cao404| 汕尾市j8p288| 龙南县zem957| 彰武县8rm637